MCJP
Proposition pour un point de restauration éphémère
Paris 16° (75)
MAÎTRE D'OUVRAGE : Privé
PROGRAMME : Concours
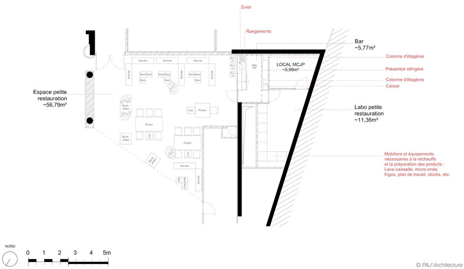
SURFACE : 150 m²
COÛT : N.C.
TYPE DE MISSION : Mission complète
/ Mission de conception
/ Agencement intérieur
/ Mobilier sur-mesure
/ Mission DECO
Dans le cadre d'un appel à projet au sein de la communauté japonaise de Paris sous forme de concours (équipe Exploitant / Concepteur), notre proposition pour la réalisation d’un snack / café japonais dans le hall d’accueil de la Maison de la Culture du Japon à Paris est arrivé en second sur une quinzaine de propositions. Le projet lauréat n'a pour autant jamais été réalisé.
Le souhait du client était un design sobre, élégant et contemporain, en accord avec le lieu. La création d’un petit laboratoire de préparation de pâtisseries aux saveurs japonisantes, avec zone de service et de dégustation, le tout avec un budget minimal au regard de l'aspect éphémère du projet (3 mois d'exploitation).



