LE MALRAUX
(Collaboration avec Drees & Sommer et HGArchitecture)
Schémas directeurs pour la rénovation et la mise en place de services d'un immeuble de bureau,
Paris 13°
/ Etudes réalisées en 2022 - 2023
MAÎTRE D'OUVRAGE : DEKA Immobilien
MANDATAIRE : Drees & Sommer
RÔLE : Responsable du projet architectural
PROGRAMME : Schémas directeur
SURFACE : 7 070 m²
COÛT : 17 800 k€ env. - Estimatif C.E.S.
EXIGENCE ENVIRONNEMENTALE / LABELLISATION :
HQE BD Excellent, BREEAM Excellent, BBC Effinergie Rénovation, BBCA Rénovation, OsmoZ axe 1
TYPE DE MISSION : Aide à la Programmation
/ Mission de conception
/ Aide à la programmation
/ Schémas directeurs
/ Faisabilité architecturale
Immeuble construit en 2001 situé sur la ZAC Massena, à proximité d’équipements variés, de la Bibliothèque François Mitterand, de la Station F regroupant des Start-ups, de transports en communs et mobilités douces, et d’une offre commerciale qui s’est enrichie ces dernières années, il bénéficie d’un potentiel fort au regard de son positionnement dans le contexte urbain.
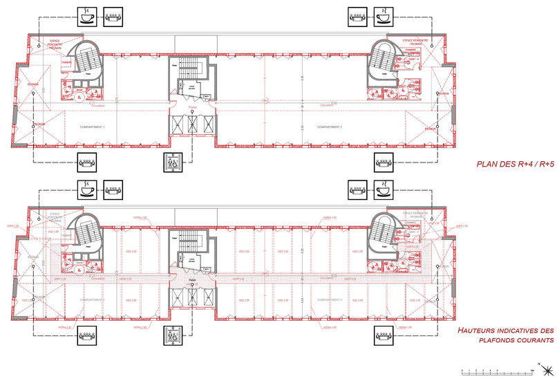
C’est une architecture type de la fin des années 1990, peu connectée sur son environnement urbain et proposant peu de services, datés, et peu ou pas d’espaces extérieurs, non végétalisés. La façade en mur rideau de verre flanquée de brise-soleils horizontaux est extrêmement exposées, et une austérité des matériaux sur le parvis ne donnant pas de sentiment d’accueil et de confort. Les plateaux quant à eux offre une bonne morphologie et une découpe intéressante (deux noyaux de circulations verticales).
Les enjeux du projet sont le respect du DEET 2040 et du CRREM Pathway 2040, en plus d’un nombre important de labellisation, d’une démarche bas carbone et low-tech, et de réemploi. De plus, une remise au goût du jour et aux usages actuels est prévue par l’ajout de services, de locaux communs et de mobilités douces.
La simplification des typologies de façades, l’absence de climatisation (CLIMESPACE, GTB, CTA "Tout air neuf" double-flux adiabatique et brasseurs d’air couplés avec une ventilation naturelle de nuit, avec mise en place de caniveaux de chauffage électrique d’appoint), et la simplification des réseaux fluides (y compris le désenfumage naturel) permettent de diminuer un peu plus l’impact carbone et matériaux du bâtiment tout au long de son exploitation. En redonnant ses lettres de noblesse à un RDC en double hauteur en continuité avec la rue, l’immeuble s’ouvre alors sur les espaces extérieurs et se voit coiffé d’un attique végétalisé permettant une promenade verticale offrant des points de vue sur tout Paris.
Les labellisations visées seront le HQE BD niveau Excellent ou BREEAM Excellent, BBC Effinergie Rénovation et BBCA rénovation et Label OsmoZ axe 1. Les labels R2S et WiredScore allant à l’encontre du concept low-tech, ils ne sont pas prévus au programme mais pourront tout de même y être intégrés s’il y a une volonté d’affichage.
Les châssis bois constituant 40% de l’enveloppe avec ouvrants motorisés pour une ventilation naturelle de nuit, et la façade en bloc de chanvre + enduits plâtre projeté intérieur et enduit chaux et sable extérieur, sont de forts indicateurs de l’enjeu du projet : la sobriété.
Construisons frugal pour réduire la facture énergétique sans perdre en confort tout en réduisant les apports de matières et produits complexes sans réduire le bien-être et l’agrément des bureaux.















